Официальный мануал по ремонту кузова седан / вагон


Рекомендуемые сообщения

Официальный мануал по ремонту кузова

Для правильного ремонта кузова своей машины выкладываю официальный ремонт тойота по кузову



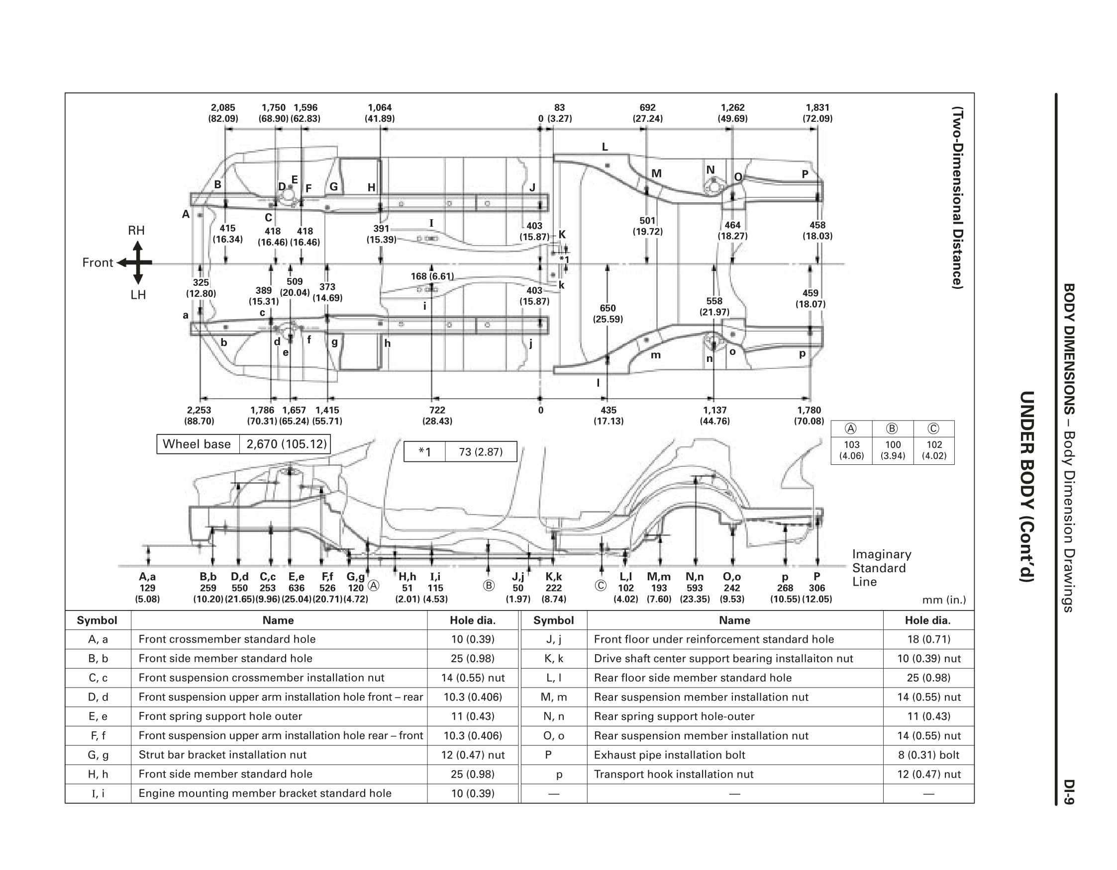
Основные размеры (контрольные точки) кузова в картинках СЕДАН:
wKm3cCR04uo.jpgzla2dyCx7L8.jpg
QQSYh1_mLoU.jpg
Kc1agbe38mU.jpg
mPk6Qr7UY_o.jpg
cfzFoRuDjqY.jpg
BolasbKlMAk.jpg
oCMsbRYP8xc.jpg
Yranph15DIY.jpg

HoSfL9pxyPo.jpg

 

Основные размеры (контрольные точки) кузова в картинках СПОРТКРОСС:

PYn4fxFcA3c.jpg
GXiRlUhKqG4.jpg

8_ORDpw2HzU.jpg

pngD2Z-85Ds.jpg

E5P4mgATmYU.jpg

CkT3kG4ssQ8.jpg

ZwvAt_yweaA.jpg

xDK9t8XTT6E.jpg

QV-C0tORx68.jpg

H0YZpXInGjs.jpg

 

ссылка для скачивания архива о ремонте кузова:  https://vk.com/doc2624252_496388903 - "BRM084E.rar" (8,2 Мб)  /  UPD: 19/03/2019 (добавлен кузов спорткросс)

PS: архивы храниться в вконтакте, если будут проблемы пишите лучше в вк (http://vk.com/id2624252) (возможно, для скачивания потребуется зайти вконтакт, или зарегистрироваться тем кто не имеет там аккаунт, либо попросить скачать тому кто уже там зарегистрирован)

Изменено пользователем titan
добавление материала
Ссылка на комментарий
Поделиться на другие сайты

Присоединяйтесь к обсуждению

Вы можете написать сейчас и зарегистрироваться позже. Если у вас есть аккаунт, авторизуйтесь, чтобы опубликовать от имени своего аккаунта.

Гость
Ответить в этой теме...

×   Вставлено с форматированием.   Вставить как обычный текст

  Разрешено использовать не более 75 эмодзи.

×   Ваша ссылка была автоматически встроена.   Отображать как обычную ссылку

×   Ваш предыдущий контент был восстановлен.   Очистить редактор

×   Вы не можете вставлять изображения напрямую. Загружайте или вставляйте изображения по ссылке.